Проект №93 Каркасный дом 6х6

каркас из строганой доски
Создайте свой план для этого проекта
и отправьте его нам на расчет в один клик.
Каркасный дом (150 мм) 6х6 Толщина утепления 150 мм 1925800 Заказать
Каркасный дом (200 мм) 6х6 Толщина утепления 200 мм 2075800 Заказать

Доставка включена в стоимость дома!

Чтобы адаптировать готовый проект и получить персональную планировку, воспользуйтесь планировщиком.

С помощью планировщика вы имеете возможность создать подходящие эскизы, планы, схемы, чертежи будущего дома с мансардой, эркером, с несколькими спальнями. Вы сможете получить прекрасный проект, который 100% отвечает вашим требованиям.

При заказе дома можно подобрать определенный вид кровли. Крышу можно сделать двускатной, четырехскатной и вальмовой. Двухскатная считается самой востребованной у малометражных построек.

Самые востребованные размеры на данный момент: мини - до 50м2 (в основном, 1-этажные дома); компактные - от 70 м2 до 100 квадратов (обычно двухэтажные); большие постройки - начиная от 150 м2 и более.

Строим дуплексы - каркасные дома с 2-мя входами, рассчитанные на две семьи. Такие дома строятся для двух хозяев, они разделяются на две половины, для каждой половины - свой вход.


Наши работы

Перейти в галерею


Комплектация

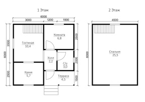
Площадь застройки: 36 м2
Длина: 6 м
Ширина: 6 м
Общая площадь: 58 м2
Исполнение Под ключ (с отделкой)
Фундамент Свайно-винтовой или ж/б сваи (рассчитываются отдельно).
Гидроизоляция фундамента Рубероид в два слоя.
Основание (обвязка) Из обрезного бруса 150х150 мм. 150х200 мм. согласно выбранной толщине утепления. Торцевая доска строганая 45х145/45х195+/-5 мм. согласно выбранной толщине утепления. Обработка антисептиком.
Цокольное перекрытие Строганая доска камерной сушки 45х145/45х195+/-5 мм. с шагом 590 мм. Обработка антисептиком.
Пол черновой Обрезная доска камерной сушки 20х100 мм.
Влаго-ветрозащита чернового пола Мембрана Ондутис А100.
Внешние стены Стойки каркаса из строганой доски камерной сушки 45х145/45х195+/-5 мм. с шагом 590 мм. Верхняя двойная и нижняя обвязки из строганой доски камерной сушки 45х145/45х195+/-5 мм. Разгрузочный ригель из строганой доски 45х145+/-5 мм. Укосины из строганой доски 20х95 мм.
Перегородки Стойки каркаса из строганой доски камерной сушки 45х95+/-5 мм. с шагом 590 мм. Верхняя двойная и нижняя обвязки из строганой доски 45х95+/-5 мм. Разгрузочный ригель из строганой доски камерной сушки 45х145+/-5 мм. Укосины из строганой доски камерной сушки 20х95 мм.
Сборка каркаса На гвозди.
Высота от пола до потолка Дом одноэтажный: 2,5 м. Дом с мансардой: 1-ый этаж- 2,5 м.
2-ой этаж (мансарда)- 2,3 м.
Дом в полтора и два этажа:
1-ый этаж 2,5 м.
2-ой этаж 2,4 м. в полутораэтажном доме
2,5 м. в двухэтажном доме.
Внешняя отделка стен Имитация бруса камерной сушки, сорт АВ, толщиной 17 мм. Монтаж через строганый брусок камерной сушки 45х45+/-5 мм. (вентилируемый фасад). Влаго-ветрозащитная мембрана- Ондутис А100.
Внутренняя отделка стен, перегородок Евровагонка камерной сушки, сорт АВ, толщиной 12,5 мм. по строганой рейке 20х40+/-5 мм. либо ГКЛ 12,5 мм.
Отделка потолка Евровагонка камерной сушки, сорт АВ толщиной, 12,5 мм. по строганой рейке 20х40+/-5 мм. либо ГКЛ 12,5 мм.
Пол чистовой Шпунтованная доска камерной сушки толщиной 35-36 мм. сорт АВ. по строганой рейке 20х40+/-5 мм. либо шпунтованная ДСП 16 мм. по разряженной обрешётке из строганой доски камерной сушки 20х95+/-5 мм.
Утепление (пол, потолок) Минеральная вата Knauf 150/200 мм. согласно выбранной толщине утепления.
Утепление стен Плитный утеплитель Rockwool, толщиной 150/200 мм. согласно выбранной толщине утепления.
Звукоизоляция перегородок Плитный утеплитель Rockwool, толщиной 100 мм.
Пароизоляция (стены, перегородки, пол, потолок) Плёнка Ондутис R70. Дополнительная герметизация нахлёстов/примыканий пароизоляционной плёнки клейкой лентой Delta.
Окна Двухкамерные стеклопакеты ПВХ белого цвета, профиль 60 мм. В комплекте: отливы, подоконники, москитные сетки.
Двери Входная- металлическая, утеплённая (Россия). Межкомнатные- филёнчатые.
Наличники на окна и двери Наличник деревянный, строганый, камерной сушки 70-90 мм. с двух сторон.
Лестница (при наличии второго этажа) Деревянная, одно или двухмаршевая. Перила- заводские резные, балясины- заводские точеные, устанавливаются стартовые точёные столбы. Ступени 40х200 мм. Тетива лестницы- 90х140 мм.
Крыша Двускатная, ломаная или вальмовая в соответствии с проектом.
Стропильная система Выполнена из строганой доски камерной сушки 45х145/45х195+/-5 мм. Шаг установки стропил 590 мм.
Обрешётка Выполняется из строганой доски камерной сушки толщиной 20х95+/-5 мм. Шаг крепления обрешетки 350 мм. Контробрешётка выполняется из строганого бруска камерной сушки 45х45+/-5 мм. Крепится по стропилам (вентиляционный зазор).
Подкровельная мембрана Ондутис А100
Кровельное покрытие (на выбор) Металлочерепица 0,45 мм. Цвет на выбор.
Фронтоны (при наличии) Каркас из строганой доски камерной сушки 45х145/45х195+/-5 мм. Обшиваются имитацией бруса камерной сушки, сорт АВ, толщиной 17 мм. Монтаж через строганый брусок камерной сушки 45х45+/-5 мм. (вентилируемый фасад). Влаго-ветрозащитная мембрана- Ондутис А100. Монтаж вентиляционных решёток.
Свесы крыши Ширина 400 мм. Подшиваются вагонкой камерной сушки, сорт АВ.
Терраса/балкон (при наличии) Устанавливаются опорные столбы из строганного бруса камерной сушки 140х140 мм.
Отделка потолка террасы/балкона Евровагонка камерной сушки толщиной 12,5 мм. сорт АВ.
Пол террасы/балкона Шпунтованная доска камерной сушки толщиной 35-36 мм. сорт АВ.
Ограждение террасы/балкона Перила- строганая доска. Балясины- точеные, фигурные. Либо ограждение в скандинавском стиле. Устанавливаются ступени у входа.
Допуск на геометрические параметры Составляет +/- 50 мм по длине с каждой стороны.
Допускается стыковка имитации бруса, вагонки и половой доски По всему периметру стен дома (если ширина и длина дома более 6,0 метров). Вагонки и доски пола в каждой отдельной комнате.
Допуски по имитации бруса, вагонке, доске +/- 5 мм.
В стоимость включена Доставка комплекта материала в радиусе 500 км. от г. Пестова Новгородской области и сборка дома на вашем участке.
Гарантия 5 лет.
Бытовка строительная 2,0х3,0 м. каркасно-щитовая. Стоимость 23000 руб. Остаётся на участке Заказчика.
Туалет 1,0х1,0 м. каркасно-щитовой. Стоимость 12000 руб. Остаётся на участке Заказчика.
Генератор Стоимость аренды на весь срок строительства 15000 руб. ГСМ за счёт Заказчика.

Постройка каркасного дома выполняется в двух вариантах: под усадку, когда сруб будет отстаиваться в течение определенного времени и сразу под ключ.

В зимний период предпочтительнее строить дома в морозную погоду, чтобы каркас не промок, в летнюю пору - не под дождем.

Оптимальными для дачи или сада стали бюджетные домики на винтовых сваях, на нашем сайте можно найти одноэтажные и полуторатажные варианты.

В том случае если дом будет строиться для проживания на протяжении всего года, рекомендуем очень теплые одноэтажные и двухэтажные дома на плитном и ленточном фундаменте.

Имеется 2 варианта толщины утепления: 150 мм и 200 мм. Каркасные дома с утеплителем 200 миллиметров получаются теплее, но стоят дороже.

Дополнительные услуги


Дом из каркаса , согласно проекту 93 полутораэтажный с теплой двускатной крышей, может похвастаться экологической чистотой, в связи с применением стружчатых плит, ваты базальтовой и минеральной, а это предоставляет отменную морозостойкость, идеальный микроклимат в доме. Параметры этого уютного гнездышка составляют 6х6 м., общая жилая площадь - 58 кв.м.. Наша фирма в кратчайшие сроки построит дом из каркаса по индивидуальному или типовому плану в Феодосии в удобное для вас время года и на любом виде грунта.

Популярные проекты


Дома из бруса 6х8 Дома из бруса 7х9 Каркасные дома с верандой
хит продаж
Тип: с маленькой террасой
Общая площадь: 2
1539080
от 1465800
хит продаж
Тип:
Общая площадь: 2
1948580
от 1855800
хит продаж
Тип: с балконом, с маленькой террасой
Общая площадь: 2
1980080
от 1885800
Дома из бруса

Заказать или задать вопрос




Дома из бруса в Феодосии
Отзывы из Яндекс Карт
4.9
81 отзывов
Дополнительные услуги 88%
2 154 оценок
Комплектации 89%
1 535 оценок
Планировки 90%
2 484 оценок
Проекты 93%
2 231 оценок
С
Степа Назаров14.08.2025 г.
Сосед строил баню у другой фирмы и теперь постоянно завидует моей — у него уже появились трещины, а мой брус остается ровным и гладким.
Отзывы из Google Карт
4.8
49 отзывов
Дополнительные услуги 88%
2 154 оценок
Комплектации 89%
1 535 оценок
Планировки 90%
2 484 оценок
Проекты 93%
2 231 оценок
С
Адам Бычков13.02.2025 г.
Я долго выбирал подрядчика для строительства деревянного дома и в итоге остановился на компании Брус дома. Менеджер Владимир помог мне определиться с проектом каркасного дома, ответил на все мои многочисленные вопросы. Бригада приехала точно в срок и работала без простоев, видно было, что люди с опытом. Результат превзошел ожидания — дом теплый, уютный и очень качественный.
Отзывы из 2гис
4.9
36 отзывов
Дополнительные услуги 88%
2 154 оценок
Комплектации 89%
1 535 оценок
Планировки 90%
2 484 оценок
Проекты 93%
2 231 оценок
С
Гелия С.04.04.2025 г.
Работа с вами оставила исключительно положительные эмоции — от первого звонка и до финальной сдачи объекта чувствовалась ответственность и искреннее желание сделать хорошо.

Заказать или задать вопрос

Заказать звонок

Напишите нам
Здравствуйте! Отправьте нам вопрос или заявку в WhatsApp